St Ann's Chapel, Cornwall St Ann's Chapel, Cornwall

St Ann's Chapel, Cornwall

3 bedroom Terraced House Sold STC

£260,000

  • 3 bedroom
  • 2 bathroom

Key Features

  • 3 Beds / 2 Baths
  • Huge Rear Garden
  • Extended Sun Room
  • Double Width Driveway
  • Far Reaching Views
  • Character Features

Description

A double fronted three bedroom cottage in St Ann's Chapel in Cornwall with far reaching views. This character cottage still retains some period features including original beams and stone fireplace with log burner. The cottage has been extended by the current owners, providing a fabulous garden room with vaulted ceiling and roof light and a downstairs shower room and separate utility. You enter to a useful porch area then through to the main sitting/dining room which has the feature fireplace and dual aspect windows. There is a galley style kitchen with a good amount of cupboards and a large opening looking into the sun room. Off the kitchen is a separate utility room with space and plumbing for washing machine and tumble dryer, and a doorway leading through to a modern shower room. The sun room is a great addition to the house and is currently used as a playroom. Upstairs are three bedrooms, two of which are good size doubles and the family bathroom. The front two bedrooms have far reaching views to Plymouth Sound and over the Tamar Valley.

Externally there are extensive rear gardens, ideal for a family, which are mostly laid to lawn with different tiered areas as you walk up through to the top. From the top you can sit and relax and make most of the same far reaching views. Please note there is a right of way for the adjoining properties at the rear. To the front is a paved driveway for two cars.

Entrance door leads to:

PORCH
Double glazed window to side, tiled floor, coat hooks, double glazed door to:

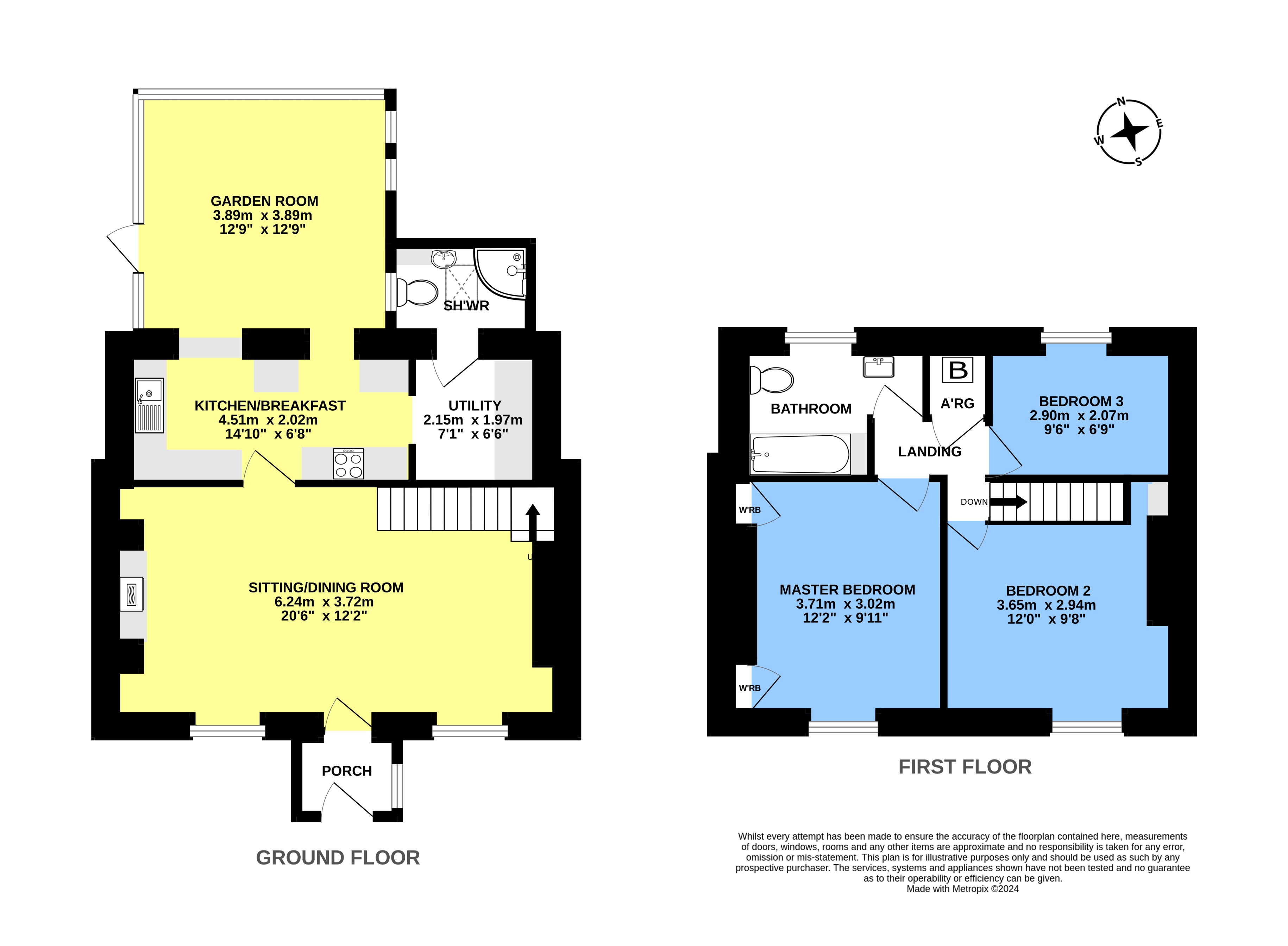
SITTING/DINING ROOM
6.239m x 3.719m (20'6" x 12'2")
Feature exposed stone fireplace with wooden lintel, raised plinth and wood burner, exposed beam ceiling, two double glazed windows to front with deep sills, two radiators, wall lights, staircase to first floor, door to:

KITCHEN/BREAKFAST ROOM
4.510m x 2.022m (14'9" x 6'8")
Fitted kitchen with a range of base units and drawers under roll edge work surfaces, matching wall cupboards and tiled walls, Whirlpool double electric oven with grill in white, separate Smeg halogen hob with stainless steel splashback, cooker hood over, stainless steel sink unit with single drainer and mixer tap, plumbing for dishwasher, inset ceiling lighting, radiator, tiled flooring, opening and doorway to sun room, opening to:

UTILITY
2.147m x 1.974m (7'0" x 6'6")
Work surface with cupboards under, matching double wall cupboard, plumbing for washing machine, inset ceiling lighting, tiled flooring, door to:

SHOWER ROOM
Suite in white comprising low flush WC, corner shower cubicle with glazed doors and mains shower, wash hand basin set in vanity unit with cupboards and drawers under, chrome ladder style radiator, extractor fan, double glazed window to side, tiled flooring.

GARDEN ROOM
3.899m x 3.894m (12'9" x 12'9")
Lantern double glazed ceiling with inset ceiling lighting, double glazed window to rear and sides, double glazed door, electric underfloor heating.

LANDING
Access to the loft space, airing cupboard housing gas boiler providing central heating and hot water.

MASTER BEDROOM
3.705m x 3.022m (12'2" x 9'11")
Double glazed window to front, built in recess wardrobes with louvre doors, radiator, wall lights.

BEDROOM TWO
3.647m x 2.944m (11'11" x 9'8")
Double glazed window to front, radiator, recess with shelving.

BEDROOM THREE
2.901m x 2.067m (9'6" x 6'9")
Double glazed window to rear, radiator.

BATHROOM
Modern white suite comprising panelled bath with mixer tap and shower attachment, glazed screen, low flush WC, wash hand basin with mixer tap and cupboard under, vanity unit over, fully tiled walls and flooring, double glazed window to rear, inset ceiling lighting, ladder style chrome radiator.

EXTERNAL
The property has a large garden to the rear which is accessed via the conservatory leading to a patio with gate to side and steps with gate up to the main garden that is laid mainly to lawn. From the top of the garden you can enjoy the views of the surrounding area. There are various storage sheds.

There is a right of way for the adjoining property through the garden and the side gate for pedestrian access. We understand this is rarely used.

There is parking to the front for 1-2 cars and a path gives access to the front.

MOBILE/BROADBAND COVERAGE
To check broadband and mobile phone coverage please visit Ofcom here:
ofcom.org.uk/phones-telecoms-and-internet/advice-for-consumers/advice/ofcom-checker

 

SERVICES
Mains electric/gas/water/drainage.       

OUTGOINGS
We understand the property is in band 'C' for council tax purposes by internet enquiry with Cornwall County Council.

VIEWING
By appointment with Kirby Estate Agents on 01822 612010.        

FLOOR PLAN DISCLAIMER
These plans are set out as a guideline only and should not be relied upon as a representation of fact. They are intended for information purposes only and are not to scale.      

TENURE
Freehold.          

PLEASE NOTE

Before any sale is formally agreed, we have a legal obligation under the Money Laundering regulations and Terrorist Financing Act 2017 to obtain proof of your identity and of your address, take copies and retain on file for five years and will only be used for this purpose.

We carry out this through a secure platform to protect your data. Each purchaser will be required to pay £15 upon an offer verbally being agreed to carry out these checks prior to the property being advertised as sale agreed.

 

We may refer buyers and sellers through our panel of Conveyancers. It is your decision whether you choose to use their services. Should you decide to use their services you should know that we would receive a referral fee of £150 from them for recommending you. As we provide them with a regular supply of work you benefit from a competitive price.

We also refer buyers and sellers to our Financial Advisers. It is your decision whether you choose to use their services. Should you decide to use any of their services you should be aware that we would receive a average referral fee of £200 from them for recommending you.

You are not under any obligation to use the services of any of the recommended providers, though should you accept our recommendation the provider is expected to pay us the corresponding referral fee.

Before any sale is formally agreed, we have a legal obligation under the Money Laundering regulations and Terrorist Financing Act 2017 to obtain proof of your identity and of your address, take copies and retain on file for five years and will only be used for this purpose.

We carry out this through a secure platform to protect your data. Each purchaser will be required to pay £20 upon an offer verbally being agreed to carry out these checks prior to the property being advertised as sale agreed.


Location


Floorplan

Floorplan

EPC

EPC for St Ann's Chapel, Cornwall

Video Tour