Gunnislake, Cornwall Gunnislake, Cornwall

Gunnislake, Cornwall

3 bedroom Property for sale

£190,000

  • 3 bedroom
  • 1 bathroom

Key Features

  • Lots of Character Features
  • 3 Bedrooms + 2 Reception Rooms
  • Open Kitchen/Breakfast Room
  • Bespoke Hand Built Kitchen
  • Centrally Located in Village
  • Walking Distance to Train Station

Description

'Wood House' is a quirky character cottage situated in the heart of Gunnislake, Cornwall. Originally a former Tea Room in the village, we believe the house dates back to approximately 1850. This stylish three bedroom cottage is deceptively spacious and offers plenty of accommodation on both floors. The property has been thoughtfully and tastefully restored by the current owners over the past 25 years with particular attention to detail over the original features including floorboards, tiling and doors. These features paired with modern touches like a freestanding log burner and double glazing make for a cosy and contemporary home with plenty of character.

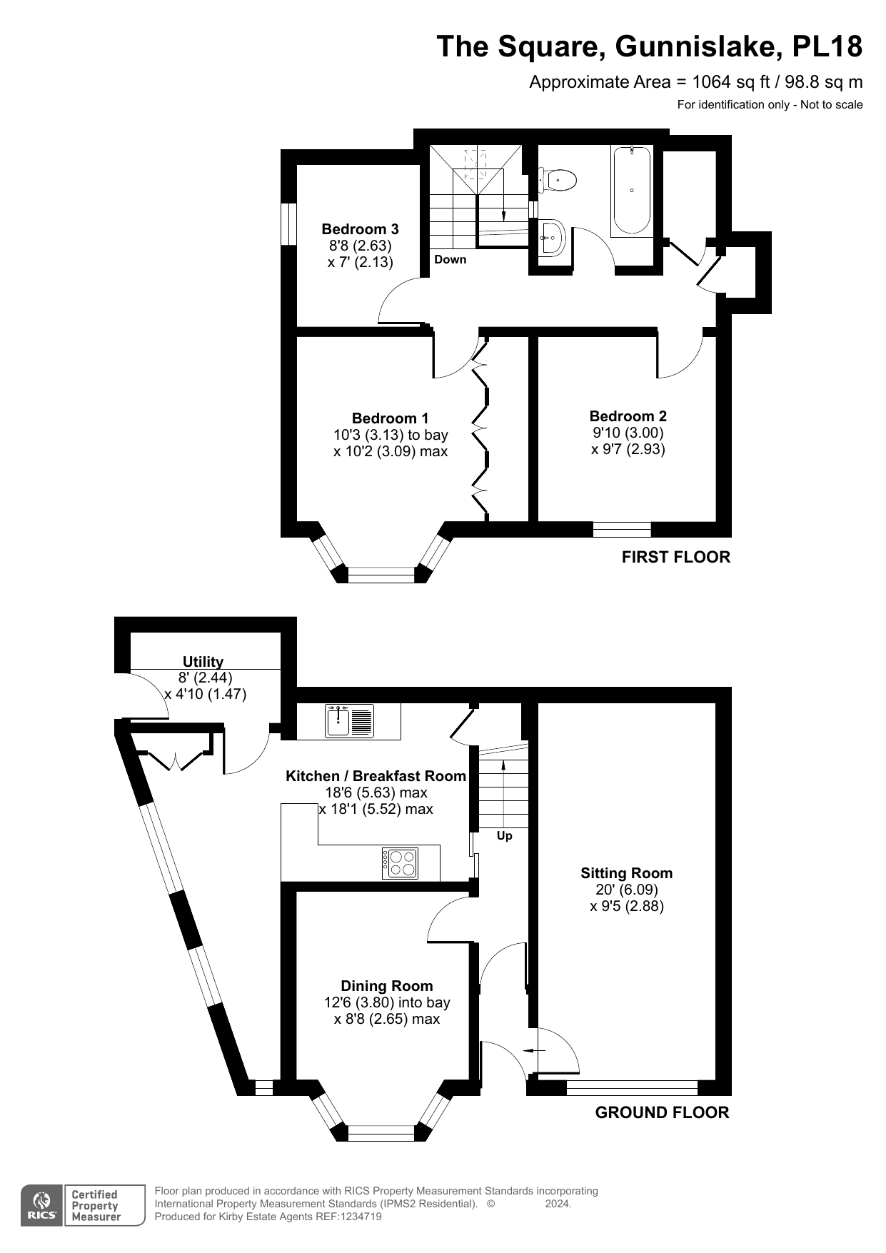
You enter via an attractive composite door, into a vestibule then through to the hallway which has original Victorian tiling and stained glass door. To the right is the main sitting room which has shuttered windows and the free standing log burner, the length of the room allows for a dining table to be placed at one end, without infringing on your seating area. To the other side of the hallway is a cosy snug/dining room painted in heritage colours, with a bay window and another log burner. The kitchen/breakfast room is at the rear and is an equally interesting room. The vendors switched the layout to bring the kitchen in to the centre, giving a bright dining area with three windows opening out to the side. The kitchen was hand built locally, with bespoke oak units and a beautiful slate worktop with a matching wall mounted plate rack above the Belfast sink. There is some understairs storage as well as built in cupboards in the dining area, plus a useful separate utility room tucked away in the corner. Upstairs are three bedrooms, two of which are good size doubles with a large single bedroom. There are two storage cupboards off the landing and a family bathroom with shower over the bath. The two front bedrooms have some far reaching views over the nearby church and pine trees covering the valley. 

Composite entrance door leads to:

VESTIBULE
Tiled flooring, coat hooks, door to sitting room, part glazed door to:

ENTRANCE HALL
Tiled flooring, radiator with cover, staircase to first floor, doors to dining room and kitchen.

SITTING ROOM
6.053m x 2.897m (19'10" x 9'6")
Exposed wooden floorboards, wood burner in one corner set on slate hearth, picture rail, radiator, large double glazed window to front with louvre shutters.

DINING ROOM
3.639m x 2.641m (11'11" x 8'7")
Double glazed bay window to front with fitted blinds, inset wood burner on slate hearth, radiator, exposed painted wood floors, radiator.

KITCHEN
2.755m x 2.733m (9'0" x 8'11")
Fitted hand built oak kitchen with a range of base units and drawers under slate work surfaces with matching upstands, Zanussi four ring induction hob, electric under counter Zanussi double oven and grill, cooker hood, integrated fridge and freezer, enamel one and a half bowl sink unit with mixer tap, understairs storage cupboard, tiled flooring, opening to:

BREAKFAST AREA
5.455m x 2.167m (17'10" x 7'1") narrowing to 1.594m (5'2") down to 0.617m (2'0")
Quirky room with tiled flooring, part wood panelled walls, cupboard housing gas central heating boiler, further double storage cupboard, two double glazed windows to side, double glazed window to front, radiator, door to:

UTILITY ROOM
2.458m x 1.485m (8'0" x 4'10")
Work surface along one wall, space and plumbing for washing machine, and tumble dryer, tiled flooring, double glazed window to side, part double glazed door to side.

FIRST FLOOR LANDING
Velux window to rear, storage cupboard with shelving, walk in storage cupboard with light and flue for wood burner. Access to loft space.

MASTER BEDROOM
3.962m into bay x 3.118m (12'11" x 10'2")
Double glazed bay window to front with fitted blinds, fitted wardrobes to one wall, radiator.

BEDROOM TWO
3.106m x 2.914m (10'2" x 9'6")
Double glazed window to front with fitted blinds, radiator.

BEDROOM THREE
2.634m x 2.118m (8'7" x 6'11")
Double glazed window to side, radiator.

BATHROOM
White suite comprising panelled bath with mixer tap and shower attachment, pedestal wash hand basin, low flush WC, part tiled walls fully tiled around bath, radiator, extractor fan, window overlooking landing.

EXTERNAL
Although the property technically has no outside space, the current vendors do make use of a shared courtyard to the side of the property which is looked after by neighbouring properties.

PARKING
There is on road parking only which is close by.

For viewings you can use the public car park where you can park for 2 hours free of charge (ticket required).

SERVICES
Mains electric, gas water and drainage.

OUTGOINGS
We understand the property is in band 'B' for council tax purposes by internet enquiry with Cornwall Council.       

VIEWING
By appointment with Kirby Estate Agents on 01822 612010.

MOBILE AND BROADBAND COVERAGE
To check broadband and mobile phone coverage please visit Ofcom here:
ofcom.org.uk/phones-telecoms-and-internet/advice-for-consumers/advice/ofcom-checker

FLOOR PLAN DISCLAIMER
These plans are set out as a guideline only and should not be relied upon as a representation of fact. They are intended for information purposes only and are not to scale.      

TENURE
Freehold.          

PLEASE NOTE
We may refer buyers and sellers through our panel of Conveyancers. It is your decision whether you choose to use their services. Should you decide to use their services you should know that we would receive a referral fee of £150 from them for recommending you. As we provide them with a regular supply of work you benefit from a competitive price.

We also refer buyers and sellers to our Financial Advisers. It is your decision whether you choose to use their services. Should you decide to use any of their services you should be aware that we would receive a average referral fee of £200 from them for recommending you.

You are not under any obligation to use the services of any of the recommended providers, though should you accept our recommendation the provider is expected to pay us the corresponding referral fee.

Prior to a sale being agreed and solicitors instructed, prospective purchasers will be required to produce identification documents to comply with Money Laundering regulations.

MONEY LAUNDERING
Before any sale is formally agreed, we have a legal obligation under the Money Laundering regulations and Terrorist Financing Act 2017 to obtain proof of your identity and of your address, take copies and retain on file for five years and will only be used for this purpose.

 

We carry out this through a secure platform to protect your data. Each purchaser will be required to pay £20 upon an offer verbally being agreed to carry out these checks prior to the property being advertised as sale agreed.

 


Location


Floorplan

Floorplan

EPC

EPC for Gunnislake, Cornwall

Video Tour


Similar Properties

Calstock, Cornwall
For Sale

Calstock, Cornwall

2 Bed Cottage For Sale
Guide price £200,000
Gunnislake, Cornwall
For Sale

Gunnislake, Cornwall

3 Bed Cottage For Sale
Guide price £300,000
St Ann's Chapel, Cornwall
Under Offer

St Ann's Chapel, Cornwall

3 Bed Terraced House Under Offer
Guide price £260,000